INTRODUCING THE LOGIC HOME

AN OPTIMIZED DESIGN AND PROCESS

The LOGIC Home brings you the comfort and quality you expect from any GO Logic build but in a faster and more affordable package. It’s all in there: quiet, fresh indoor air, top-shelf healthy material choices, and a very low carbon footprint. A turnkey LOGIC Home is priced at $600,000 (exclusive of permitting, land, and site work). A shell-only package is priced at $225,000.

FEATURES

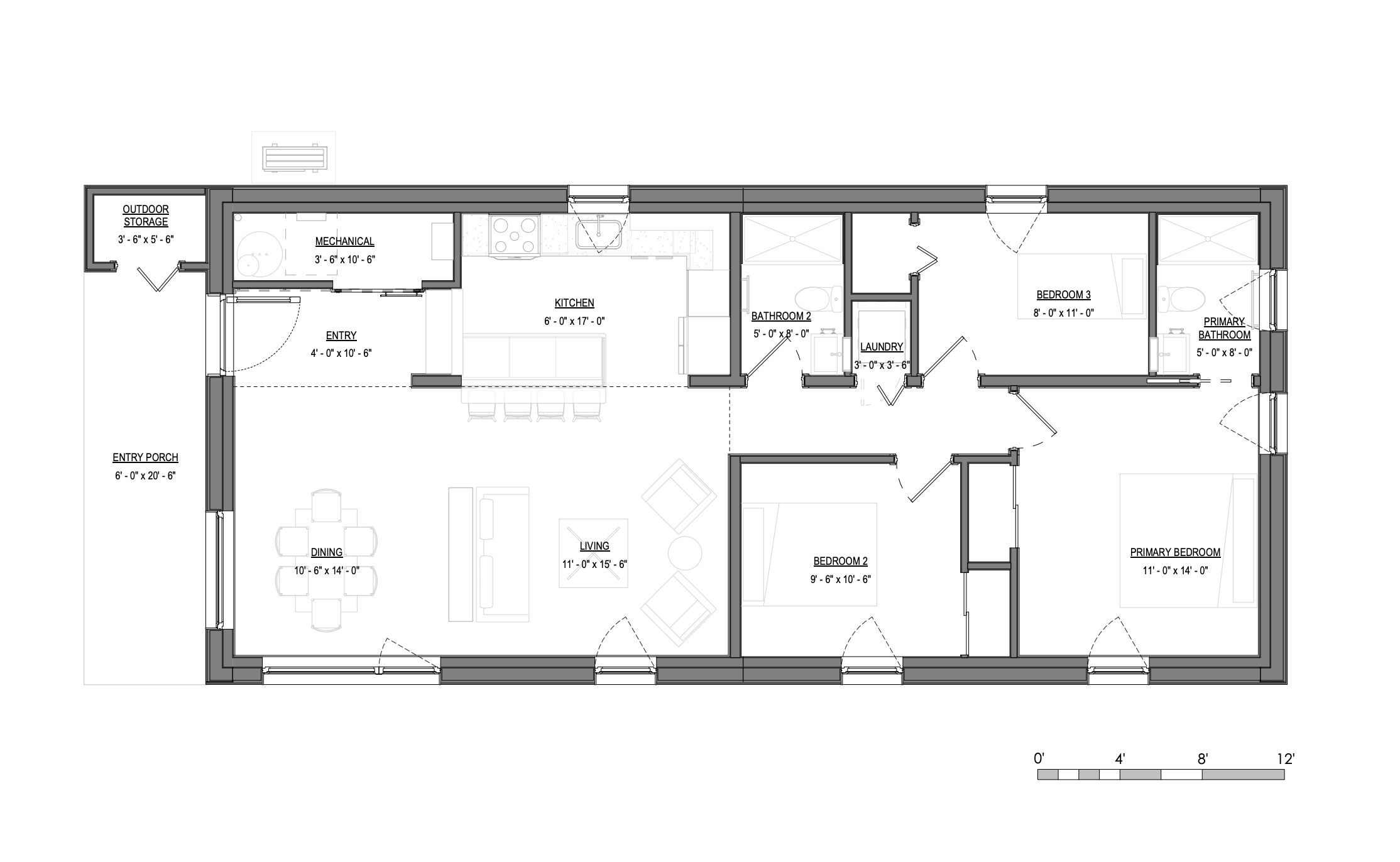
Total Floor Area:1,418 SF

Bedrooms: 3

Bathrooms: 2

Optional: Garage, Deck, Screen Porch

Download Plans
Let's Talk

BEAUTIFUL BY DESIGN

People come to GO Logic for design that’s thoughtful, modern, and quietly elegant. The LOGIC Home keeps that promise. Its compact form celebrates simplicity without sacrificing presence. Windows are carefully placed to maximize light moving through the home, creating naturally bright and expansive spaces. The layout is efficient yet generous, with space for a family or those seeking an office and a guest room. Finishes and fixtures are the same as those used in our custom homes, but with a more focused selection to keep the process simple.

NO COMPROMISES ON PERFORMANCE

Every LOGIC Home is built to the same high-performance standard as all of our homes. The building envelope remains intact with the same airtight construction, bio-based materials, trusted mechanical systems, and German triple-glazed wood/aluminum-clad windows. It’s the comfort, quiet, healthy indoor air, and low energy use our homes are known for. We achieve this through careful design simplifications and a smart approach to panelization that preserves performance while reducing complexity.

MORE ATTAINABLE, STILL OURS

We set out to lower the cost of our homes without touching the core values that define them. The LOGIC Home line focuses on simple geometry, fewer panel types, and a smoother path from design to move-in. The savings come from honing the process, not from cutting corners. We protected performance, material quality, and the design aesthetic people recognize in our work, so the LOGIC Home looks and feels like any of our other homes, simply at a more accessible price.

STREAMLINED PATH TO BUILD

With the LOGIC Home, most of the design work has already been done, so you are not starting from scratch. You can skip the long custom design phase and instead reserve your spot with a nominal fee. We will work with you to finalize your home plans using our options catalog and move straight to a construction contract. Once your place in line comes up, we will build and install a shell within weeks, not months.

The LOGIC Home: How a More Attainable GO Logic Home Came to Life

Read Now
  • The LOGIC Home is designed to sit in Passive House territory, with the same enclosure, window, and mechanical targets as our GO Home line. With the right site and detailing, it can be modeled to meet or closely approach formal certification level.

  • No long custom design phase here. You pay a modest upfront fee to get started, then we create a budget for site and utility costs before moving into a construction contract and finish selections. The architecture is already resolved, which removes a major cost and time variable from the process.

  • Right now the LOGIC Home is a single, fixed 1,418 square foot three-bedroom, two-bath plan. Locking in the layout keeps pricing predictable while we work on future LOGIC Home models.

  • Instead of open-ended custom design, you choose from a curated catalog of finishes, fixtures, and colors. Most clients complete their selections in 1-2 focused meetings, which keeps decision fatigue low and moves the project quickly toward fabrication.

FAQS

  • The initial fee reserves your place and starts a clear sequence. We review your site, confirm feasibility and refine pricing, then move to a construction contract, finalize selections and panel drawings, and schedule fabrication and installation.

  • Yes. Many LOGIC Home are built with an independent general contractor. GO Logic provides a complete drawing set and installs your panelized shell while your contractor handles site work, foundation, interior construction, and day-to-day coordination.

  • Because the energy load of this house is so low, it can be made net zero with the addition of a modest solar array.

  • Depending on location, permitting, and where you land in our production schedule, we can build and install a LOGIC Home shell in as little as four weeks from completion of the design.

Let's get started!

If you’re looking for a home, are a GC or architect, and the LOGIC Home feels like a fit, share a few details in the form and we’ll be in touch to explore your project.

Learn more
We see the LOGIC Home as a next step in how we live in our communities: in truly comfortable, low energy homes that are thoughtfully designed, rigorously built, and realistic for more households who care about both the climate and the quality of their everyday life.
— Alan Gibson, Principal GO Logic