A wooden house with three windows and a metal roof, surrounded by trees and a gravel pathway.

1700+ MODEL

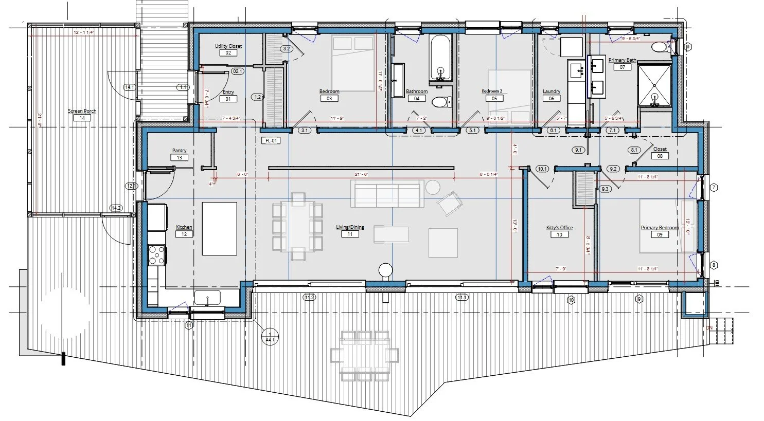
Expanded kitchen includes a pantry. Upgrades include a dedicated laundry room, walk-in closet, & office/spare bedroom.

FEATURES

Total Floor Area

Bedrooms

Bathrooms

Optional:
Garage
Deck
Screen Porch

2020 sq ft

4

2

PDF Plans

Looking for more information?

let’s talk
Floor plan of a house showing rooms including a living/dining area, kitchen, pantry, bedrooms, bathrooms, laundry, closets, and porches.

First Floor Plan

CUSTOMIZATION

Looking for a way to make your GO home a little more
unique? Explore the many color, textures and materials on
our OPTIONS page.

Options
Interior of a modern room with wooden slat walls, a brown leather chair with a white faux fur blanket, a small wooden side table, and framed artwork on the wall. A glass sliding door shows a view of a wooded outdoor area with trees and rocks.

Our GO Homes are a rarity: they combine top-shelf architecture with the absolute highest energy efficiency and the speed and precision of panelization.

The result is a gorgeous home, built in half the time,
that cost almost nothing to heat!

If this looks like your new home...

LET'S TALK!